是一家專門從事制造石墨制化工設備、石墨制品、承接以石墨材料為主體防腐蝕工程施工的廠家。能夠提供多領域所需的石墨設備和制品,多年來為閏土集團、亞邦集團、金橋鹽業集團、中化集團等大型集團企業提供了大量石墨設備,用戶反應良好。
我公司自2000年待開發石墨制系列產品以來已近二十多年歷史。本公司先后被吸收為中國氯堿協作組設備成員單位及中國化工防腐協會正式會員單位,2011年通過ISO9001-2000國際質量管理體系認證。

Product
下一個產品
NEWS
19
2024.04


服務熱線
0515-8950-5555
郵箱
dttcsm@163.com
地址
江蘇省東臺市時堰鎮沙楊工業園68號
公司簡介
企業文化
榮譽資質
企業實景
碳化硅設備
換熱設備
釜類設備
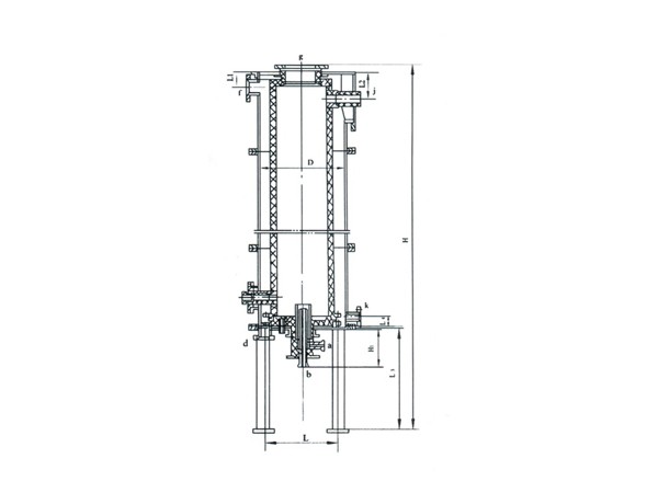
塔類設備
石墨制品
技術研發
公司動態
行業資訊
聯系方式
在線留言
Copyright ? 2024 東臺市同創石器設備制造有限公司
蘇ICP備18026146號-1網站建設:木之信息